Với định hướng mở rộng ngành nghề kinh doanh và mục tiêu chủ động trong việc Xuất nhập khẩu, lưu trữ, bảo quản các sản phẩm dược, thiết bị y tế và sinh phẩm theo tiêu chuẩn GSP; công ty cổ phần Medcomtech đã quyết định đầu tư dự án “Xây dựng kho Dược và Thiết bị y tế theo tiêu chuẩn GSP” từ tháng 11 năm 2018.
Dự án đã khởi công từ tháng 1 năm 2019 và dự kiến hoàn thành vào tháng 3 năm 2019.
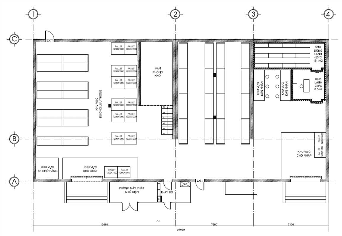
Kho GSP của công ty được xây dựng với diện tích sử dụng 353,5m2; chia làm 3 khu vực lưu trữ chính, gồm: Kho mát (15 – 250C); kho lạnh (2 – 80C) và kho lạnh âm sâu (-250C), đảm bảo cho 1,000m3 hàng hóa lưu chuyển qua kho một năm.

Hệ thống kho được kiểm soát hoàn toàn trên hệ thống BMS được kết nối với hệ thống quản lý ERP của công ty, đảm bảo tối ưu cho công tác vận hành và trên hết là đảm bảo cho sự an toàn của các sản phẩm do công ty phân phối.



